De l’atelier aux confins de la Route de la Soie : Nolite Timere s'exporte !
Quand l'Ouzbékistan décide de mettre en lumière ses sites les plus légendaires, il fait appel à l'expertise française. Nous sommes fiers de vous annoncer que la Métallerie des Alouettes participe à cette aventure lumineuse. Le défi était de concevoir et fabriquer les "écrins" de cette future illumination.
Le projet en chiffres :
- 210 fosses de protection haute précision.
- 3 tailles sur-mesure pour s'adapter parfaitement aux différentes sources lumineuses.
- 1 place historique bientôt sublimée au cœur de l'Asie Centrale.
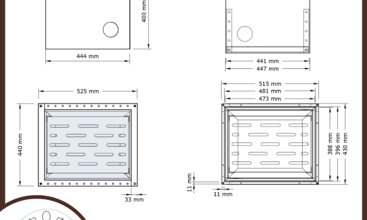
Ces fosses ne sont pas de simples boîtes : elles sont le fruit d'une conception rigoureuse :
- Inox intégral : pour une résistance absolue au temps et aux éléments.
- Aération optimisée : un système de tôles et cornières permettant une ventilation naturelle des équipements électriques.
- Dalles de verre haute résistance : pour allier une transparence parfaite pour la lumière et une solidité totale pour la sécurité des passants.
L'expédition est imminente : les 210 exemplaires quittent l'atelier ce mois-ci pour une installation prévue au printemps. On a hâte de vous montrer les premières photos du site une fois illuminé. Restez connectés, le voyage ne fait que commencer !
Besoin d’une expertise technique pour un projet hors normes (même à l'autre bout du monde) ? Nolite : No-li-mi-te !









